
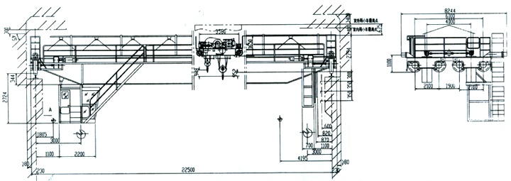
QD50/10吨双梁吊钩桥式起重机技术参数:
| 技术参数 Technological parameter | ||
| 起重量t | 主钩 | 50 |
| 副钩 | 10 | |
| 跨度 | m | 22.5 |
| 起升高度m | 主钩 | 12 |
| 副钩 | 14 | |
| 起升速度m/min | 主钩 | 5.9 |
| 副钩 | 13.2 | |
| 小车运行速度 | m/min | 38.5 |
| 大车运行速度 | m/min | 85.9 |
| 电动机总功率 | kw | 115.5 |
| *大轮压 | KN | 209.9 |
| 工作级别 | A5 | |
| 电源 | 三相交流、50HZ、380V | |
| 起重机重量 | (t) | 55.6 |
QD50/10吨吊钩双梁桥式起重机价格低:主钩起重量是50吨、副钩起重量是10吨,跨度有19.5米、22.5米,可订制,主要由箱形桥架、起重小车(包括卷筒、电机、减速机、制动器)、大车运行机构和电气控制系统组成,取物装置是吊钩,俗称行车。
主梁上面铺设有轨道,供起重小车沿主梁方向作横向移动。主梁与箱型端梁焊接而成,端梁中间布置有接头,螺栓或销轴连接,供桥架分拆运输。走台用来放置大车运行机构、电气设备及作检修用。
本行车的操作方式设有地面手柄、无线遥控和司机室三种操作形式。驾驶室有开式、闭式两种,内有可调式座椅,底板铺设绝缘垫,窗玻璃采用钢化玻璃,可根据用户要求配置冷暖空调、讯响器、对讲机等物品。
起重机工作级别A3、A5、A6,其中A3表示慢速。适宜在工厂、仓库及货场等处作装卸吊运工作。发电厂主汽机房用的较多。





