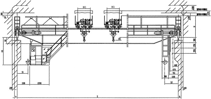
矿山起重机械、双小车吊钩桥式起重机厂家讲解:本矿山起重机有两台小车,两小车可以同时使用,也可以单独使用,适用于厂矿企业的车间或露天仓库吊运长件材料(木材,纸筒,管封,棒材)。

双小车桥式起重机与吊钩桥式起重机的区别在于主梁上设置两台小车,双小车可以单独起升,也可单独运行;当需要抬吊长件物品时,通过控制台上的转换开关,实现同步起升,同步运行。矿山起重机质量可靠,价格合理,欢迎选购。
Double—trolley Bridge Crane
注:1.大车导电有角钢和安全滑触线两种形式,供选择。
2.操纵形式有室操(分开式和闭式),地操和遥控三种,供选择。







