开云·体育

欢迎访问起重机_桥式起重机_门式起重机_厂家-开云·体育-开云(中国) 官方网站!
15249732888
吊钩双梁桥式起重机

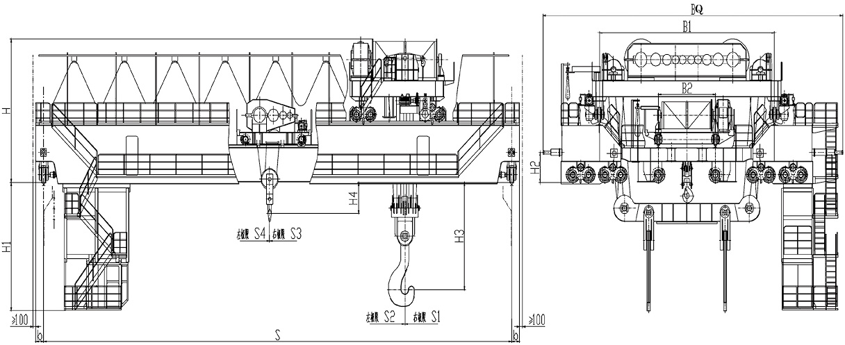
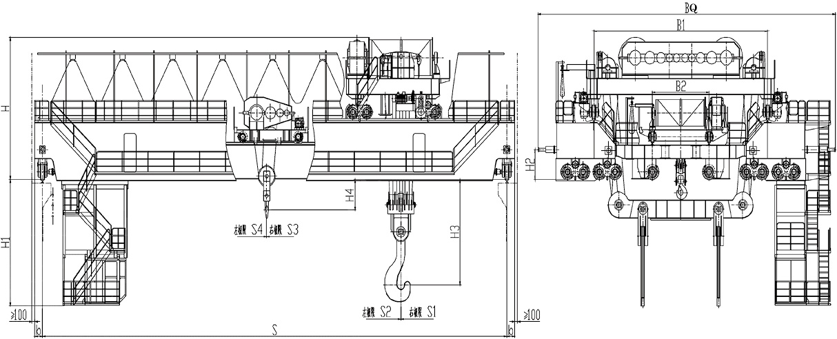
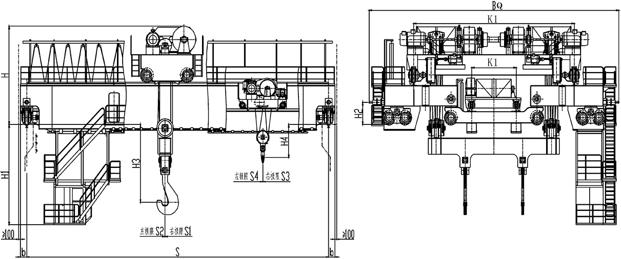
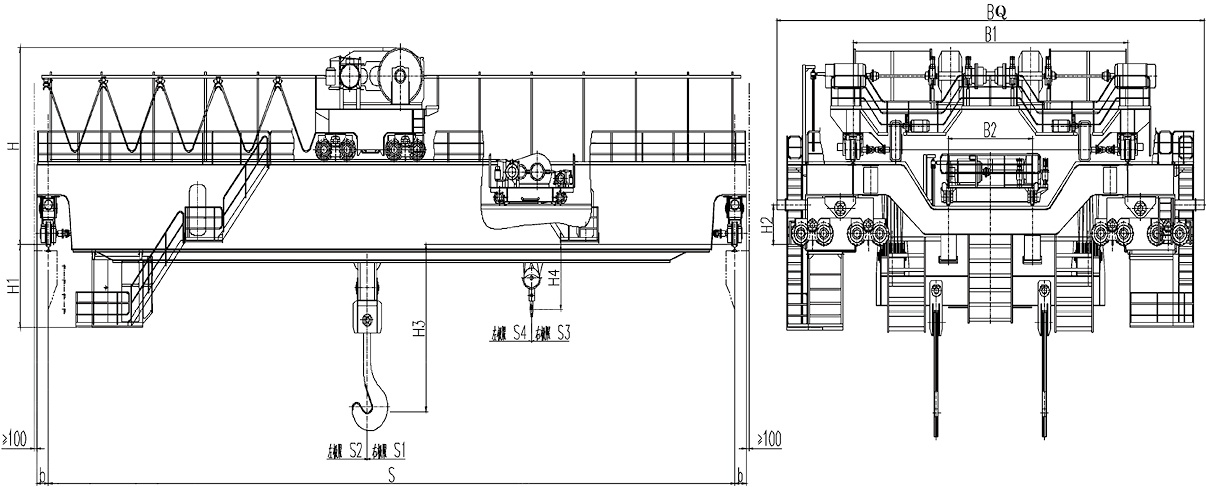
YZS型125/32到320/80吨四梁铸造吊

价   格: 询价
关键词: 铸造吊 铸造起重机 冶金吊 矿山起重机
描   述: 四梁铸造吊就是起重机有四个主梁,
15249732888
起重机械详细说明:

矿山起重机械厂生产的天车、桁吊、铸造吊产品简介:


YZS型125/32~320/80吨四梁铸造桥式天车,一般钢厂、冶金厂用的较多,矿山起重机械还是大品牌、值得信赖YZS

四梁铸造吊就是矿山起重机上有四个主梁。

四梁铸造起重机参数


相关产品:

起重机_桥式起重机_门式起重机_厂家-开云·体育-开云(中国)

葫芦双梁桥式起重机|电动单梁起重机行车|吊钩双梁桥式起重机|门式起重机 龙门吊|
15249732888

地址:河南省新乡市封尹起重工业园区

联系人:销售部 15249732888

邮箱:319929033@qq.com

起重机_桥式起重机_门式起重机_厂家-开云·体育-开云(中国)  版权所有   友情链接:  |  |  |  | 
关闭
15249732888